Visita gli ambienti
Tour 3D
Entra nel tour 3D e scopri ogni angolo con un semplice click
Planimetria
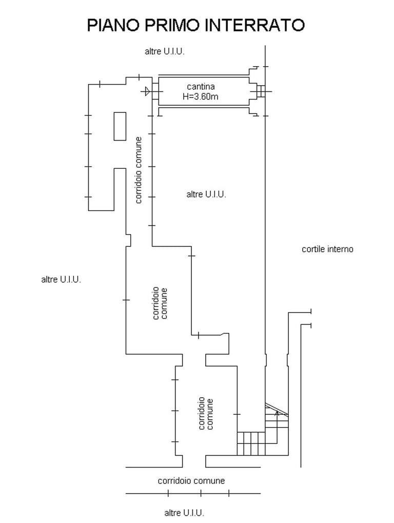
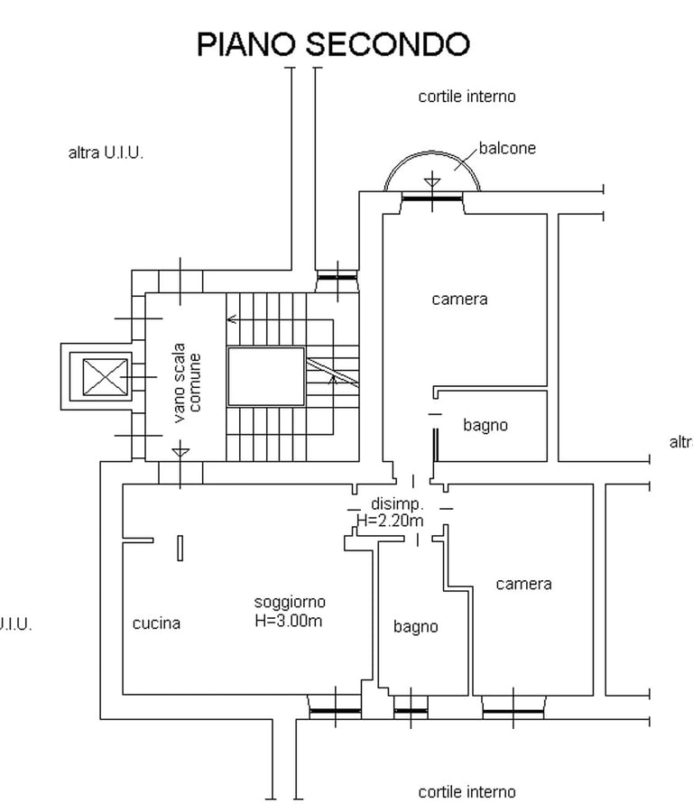
Per facilitare la navigazione, sotto le planimetrie aggiornate. Sono quelle attualmente depositate presso gli uffici del catasto, dopo la chiusura dei lavori di ristrutturazione.
Pertinenza
Planimetria aggiornata della cantina


Appartamento
Planimetria aggiornata dell'appartamento


Contatti
Facci sapere se sei interessato!
© 2026
All rights reserved.